
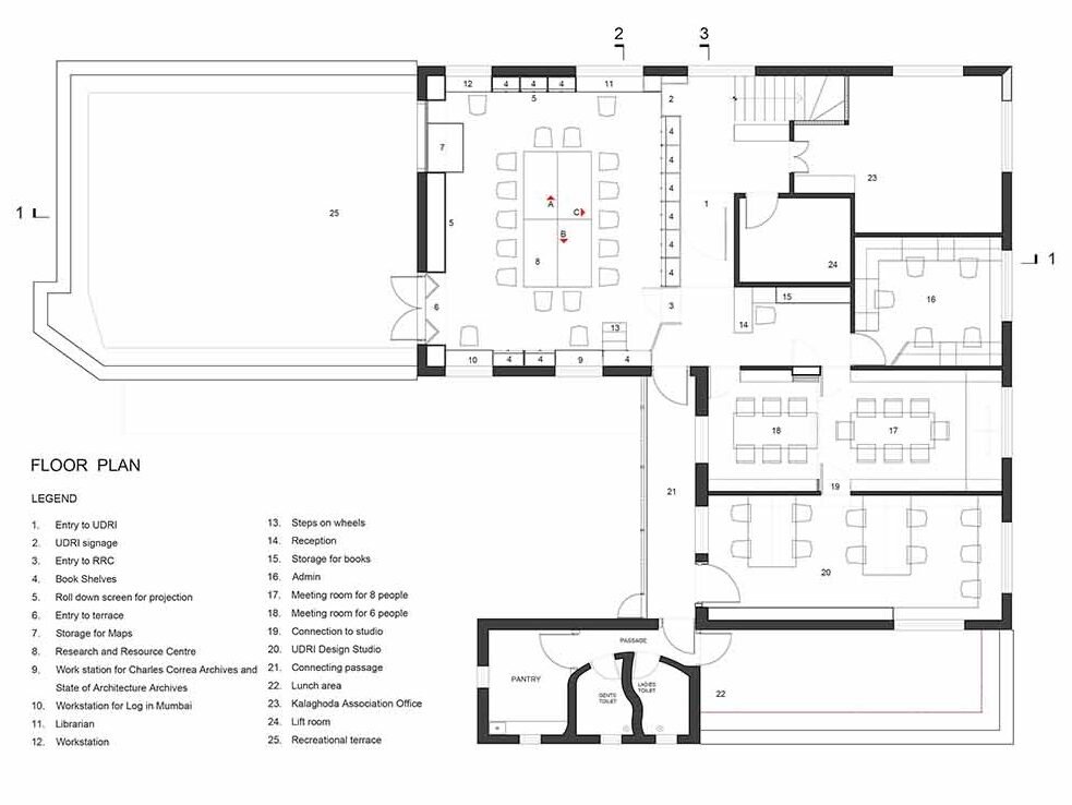
UDRI – Research and Resource Centre
To give Mumbai’s citizens an understanding of our city’s and Region’s issues, Urban Design Research Institute – UDRI instituted a Research and Resource Centre (RRC) in 2003. This facility was recently renovated to house over 2000 books, 500 maps, 600 reports, 35 publications, and over 100,000 newspaper clippings on Mumbai and the Metropolitan Area, covering the city’s history, development, its culture, and its issues. Two new additions have also been made – LoginMumbai, an online GIS database on the city, and the Charles Correa Archives, an e-collection of the revered architect’s works, who was also the founding father of UDRI. The new RRC also transforms into an event space that caters to intellectual public events, lectures, seminars, and board meetings.







The location of the research centre is very strategic to its intent and the content it has in terms of restoring and documenting old maps as well as books on Mumbai. As one opens the door to the terrace, one sees the Rajabai tower reflecting on the glass shutters of the bookshelves along with some other buildings that define the skyline of Fort. This is an incredible gesture that ties the Resource Centre to the surrounding Fort area, like a borrowed landscape that enters the space as a ghost image.











