
Four Rooms
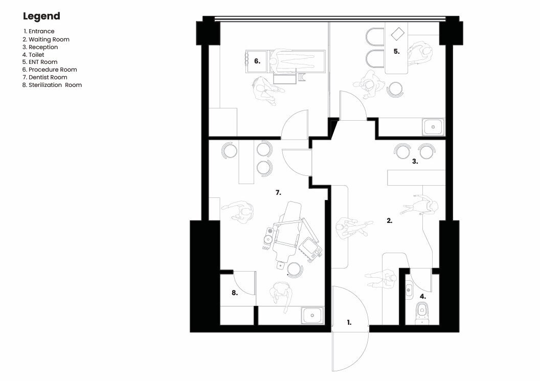
The 500-square-foot space is strategically divided into four rooms, each serving a distinct purpose. The first room, the reception, establishes the clinic’s commitment to efficiency without compromising aesthetics. The tasteful decor and ambient lighting create an inviting atmosphere, dispelling patients’ apprehensions. Upon entering the clinic, visitors are welcomed by a meticulously designed reception area adorned with a soothing palette of pink and white, providing a comfortable setting for up to 10 patients. Here, patients can effortlessly schedule appointments and wait in tranquility. The ambiance is thoughtfully curated to alleviate the often apprehensive anticipation associated with healthcare visits.


The second room, the dentist’s room, is adorned in calming dark blue and white tones, fostering a serene atmosphere for dental consultations and treatments. The dental domain stands as a testament to precision and care. The second room houses state-of-the-art dental facilities, where patients receive top-notch oral care in an environment that seamlessly blends clinical efficiency with warmth.


The ENT clinic’s third room is bathed in natural sunlight, courtesy of expansive windows. This infusion of daylight not only creates a warm and inviting ambiance but, adorned in light green and white hues, these spaces are dedicated to ensuring that specialized care needs are met with expertise. The atmosphere here is meticulously designed to soothe, offering solace to patients seeking specialized ear, nose, and throat treatment.


The fourth room, the procedure room, specialized ENT procedures are conducted here, utilizing cutting-edge technology and adhering to the highest standards of patient care. The room serves as a hub of medical precision, offering a seamless transition from diagnosis to treatment.






