
Pause – Restrooms
India’s trade and transportation rely heavily on trucks and truck drivers, a profession that has seen a rapid decline in numbers due to negligible amenities and excessive responsibilities. Currently, truck drivers often have little to no access to restrooms or pit stops during long-distance journeys. In 1982, for every 1,000 trucks, there were 1,300 drivers available; this number reduced to 750 by 2012 and is predicted to decrease to 450 by 2022. In other words, 50 percent of the country’s trucks remain stranded on the road due to a shortage of truck drivers. The requirement for this community to grow is important to maintain an efficient food supply and to make goods available in the retail and consumer retail chain. It becomes more imperative in these times, when, like every other country, India is facing the coronavirus pandemic, and truckers need to be supported, for they are the backbone of the supply and delivery of everything from food to medical supplies. If the number of truck drivers keeps reducing in the country in the years to come, cities in India may soon fall short of essential supplies.
‘Pause’ is a multifaceted restroom complex located along India’s Bombay-Goa highway, on the way to the Karnala bird sanctuary. Taking cues from other public utilities, including London’s famous telephone booths, post boxes, and buses, all colored in red, ‘pause’ is painted in the same color to allow passers-by to quickly identify its public facilities in the urban landscape



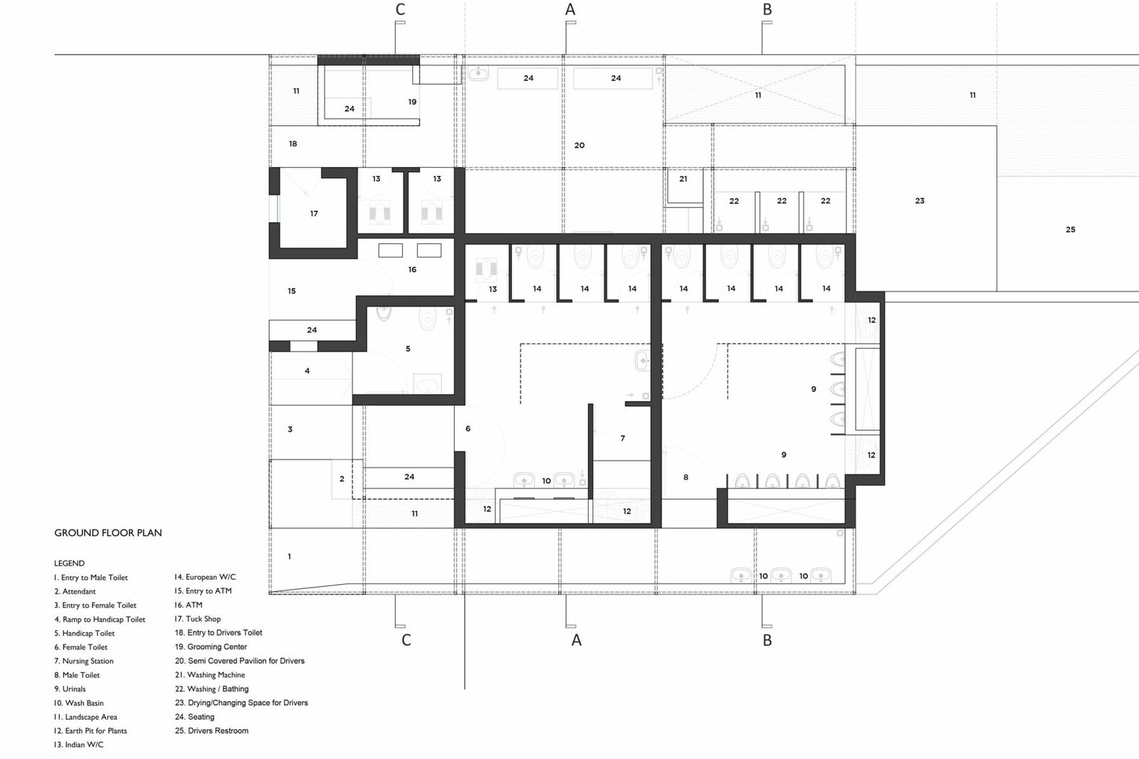
Pause is more than a public toilet; it is a thoughtfully planned campus that brings together a range of facilities designed to support long-distance truck drivers and other everyday users. The cluster is organized through multiple access points, clearly defining separate zones for different user groups. The main entry opens into a verandah niche dedicated to women, senior citizens, and the differently-abled, ensuring easy access without the need to move deep into the complex. This section includes four toilet cubicles, a nursing station, a sanitary napkin vending machine, and wash basins.



To the right, a passage leads into the men’s zone, which comprises a wash basin area, four toilet cubicles, and eight urinals, including one designed specifically for children.


At the center of the front façade is the Suvidha Kendra, a convenience center for truck drivers equipped with banking and transaction facilities. The truck drivers’ section is located at the extreme left and includes amenities such as a tuck shop, hair-cutting salon, two Indian-style toilets, a pantry, and a dedicated washing and drying area for clothes.


These activities are arranged around an open pavilion, conceived as a shared recreational space for rest, interaction, and informal entertainment.


Pause is conceived around two key design principles:
1. The Idea of Color
Drawing cues from iconic public utilities such as Telephone boxes in the United Kingdom, post boxes, and buses, all distinguished by their bold red identity, Pause adopts the same color language. The use of red enables passersby to quickly recognize the facility as a public amenity, creating an immediate visual marker within the urban landscape.

2. Natural Light and Ventilation
Natural light and ventilation are integral to the functioning and experience of the space. They not only illuminate the interiors but also help keep the toilet areas dry and hygienic. A simple architectural gesture, where the external wall is extended beyond the line of the outer beam, opens the built form to the sky, allowing light and air to enter deep into the plan. These open-to-sky niches are further activated as pockets for planting, fixtures, and services, while simultaneously enhancing ventilation and daylight. Light plays a particularly important role in public infrastructure, as well-lit and well-ventilated spaces foster a greater sense of safety and comfort, especially for women users.






